Das neue Kulturzentrum im schwedischen Skellefteå vereint Touristen und Einheimische unter einem Dach. Von Hotelturm über Culture Staircase und Bühnen bis Bücherei setzt Sara Kulturhus mit Holz und Glas ein Zeichen für Klimabewusstsein und Offenheit für alle Menschen – ganz im Sinne von Sara Lidman.
8. Dezember 2021 | Özlem Özdemir
S
ara Kulturhus ist – samt Kunstgalerie, Museum, Regionaltheater, Restaurant, Stadtbibliothek, Hotel und Konferenzzentrum – erst seit einigen Monaten im schwedischen Skellefteå eröffnet und schon könnte man ganze Bücher füllen mit den Publikationen, die mit diesem gebauten Plädoyer für moderne Holzarchitektur einhergehen. Beginnen wir mit den Ambitionen und Visionen, denn: Sara will viel.
Hinter Sara steckt Sara Lidman, eine schwedische Schriftstellerin, geboren in einem kleinen Dorf der Region Skellefteå. Ihre einfache Herkunft hat ihr Werk geprägt. Eine zentrale Rolle spielt darin der Überlebenskampf der Unterklassen. Zur Sozialkritik der Namensgeberin passt es, dass bei Sara Kulturhus regionale und globale Einflüsse zusammenkommen. Gebaut von lokalen Arbeitskräften mit lokalen Bautechniken und lokalen Materialien, ist das Ergebnis ein Kulturtreffpunkt, deren Nutzer und Besucher sich nicht beschränken aufs Lokale; neben Anwohnern und Touristen sind auch Flüchtlinge willkommen. Sara Kulturhus soll ein Reisezentrum für die Seele und ein Ort der Demokratie sein.
Die holistischen Ansprüche sind bemerkenswert und fast zu großartig für einen Ort, der als Kleinstadt durchgehen könnte: Skellefteå gilt als der südliche Zugang zu Schwedisch Lappland. Gegründet 1845 (man sagt von einem Vikar namens Nils Nordlander), ist sie eine der jüngsten Städte an der Küste Nordschwedens. Herausragende Merkmale sind – eklektisch zusammengefasst: das Skellefteå Museum, Bonnstan (ein Freilichtmuseum mit alten Holzhäusern), die Brücke Lejonströmsbron von 1737 (lange Zeit die längste Holzbrücke des Landes), eine große Bergbau- und Holzindustrie, eine Batteriewirtschaft (aktuell entsteht hier die größte Batteriefabrik Europas) und natürlich der Wald.
Über all diesen Vorzügen und Ressourcen schwebt jedoch eine Gefahr: Skellefteå hat viel Abwanderung zu beklagen. Bis zum Jahr 2030 will man für die Region eine Einwohnerzahl von 80 000 erreichen. Die Idee eines Kulturzentrums war nur ein weiterer Schachzug im Spiel der Attraktionen. Ende 2015 schrieb man dafür einen öffentlichen Architekturwettbewerb aus und erhielt 55 Beiträge aus 11 Ländern. White Arkitekter gewann mit dem Entwurf Side by Side. Der griffige Titel ist ein schlichter Ausdruck von dem, was die Bauvolumen tun: Sie stehen – in verschiedenen Höhen und Vor- oder Rücksprüngen zu den Straßen – dicht beieinander. Zugleich formuliert der Titel, was im Innern passiert, wie die Raumfunktionen miteinander vereinbar werden und Personengruppen sich vermengen – Touristen, Theaterfans, Gourmets und Bücherwürmer aus nah und fern. All das steht für das Zusammenführen von diversen Gesellschaftsschichten, ganz im Geiste Sara Lidmans.
Das neue Zentrum für Kultur und Veranstaltungen umfasst vier bestehende Kulturprogramme: das Regionaltheater Västerbotten, die Stadtbibliothek Skellefteå, das Museum Anna Nordlander und die Kunstgalerie Skellefteå, Theaterbühnen für insgesamt 1200 Personen und ein Hotel mit 150 Zimmern und einem Konferenzzentrum. Funktionen dieser Art sind ohne Zweifel auch ökonomisch effektiv; sie sorgen für steigende Einnahmen, ein weiteres zu erbringendes Soll. Warum die Stadt das Gebäude an eine Immobiliengesellschaft (SBB) verkauft hat, wäre ein anderes Thema. Fest steht: Der Volkswagen-Partner Northvolt hat nach diesem Verkauf seine Batteriefabrik in Skellefteå errichtet. Der Bürgermeister erklärt hierzu: „Wir hätten Northvolt, mit ihrem Anspruch Europas, größte Gigafabrik zu bauen, niemals gekriegt, wenn wir bei einem ersten Meeting 2017 mit den Investoren nicht direkt ein Bild von White Arkitekters Holzturm gezeigt hätten.“1
Der Holzturm, das ist das 20-stöckige Hotel mit dem kilometerlangen Ausblick über die Stadt. Er reckt empor aus dem Kuben-Ensemble des Kulturzentrums und aus der Umgebung. Die Idee an sich ist jedoch weniger herausragend. Denn bezogen auf die Holzindustrie und die Tatsache, dass die Holzbauten von Skellefteå den zunehmenden Modernisierungen weichen mussten, haben viele andere Wettbewerbsteilnehmer auf Holz und Türme gesetzt. Es war naheliegend: das Kulturzentrum als Zeichen für die Wiederbelebung einer Bautradition. Warum entschied man sich also für dieses Büro? Abgesehen von der Überzeugungskraft des Entwurfs könnte der wichtigste Grund sein: Mit seinen mehr als 700 Mitarbeitern gehört White Arkitekter zu den alteingesessensten Firmen des Landes (Sidney White und P. A. Ekholm gründeten es 1951). Sie hat neben den zehn Büros in Schweden auch im Ausland einige Niederlassungen und konzentriert sich vermehrt auf den nachwachsenden Rohstoff Holz. Neben der praktischen Expertise glänzt das Büro auch ideell. Democratising Architecture lautet die Überschrift, mit der man sich auf der Homepage2 vorstellt und damit auch bei sich selbst anfängt: 600 der Mitarbeiter sind Firmenteilhaber. Ihre Bauten sind praktizierte Nachhaltigkeit und sie stützen sich dabei sogar auf eine eigene Forschungsabteilung.
Was gab aber den Ausschlag für den Entwurf Side by Side? Bei aller technischen Versiertheit und allem Versprechen, ein nachhaltiges Bauwerk zu liefern (worauf noch eingegangen wird), versuchte White Arkitekter, ihrem Kulturhaus vor allem eines zu verleihen: Atmosphäre. Als der Bürgermeister dem Investor Northvolt ein Bild des Holzturms zeigte, tat er das nicht allein, um mit einem 20-stöckigen Hotel von 75 Metern Höhe zu beeindrucken, sondern auch, um diesen schwedischen Hersteller von Lithium-Ionen-Batterien mit einem verzaubernden, warmen Ambiente zu verführen. (Wärme ist den Schweden wichtig; berühmt ist ihr Gespür für Licht und ihre Vorliebe für Lampen, die sie in ihre Fenster stellen.) Und besagtes Ambiente zeigt sich besonders eindrücklich an einer Visualisierung, in der der Turm förmlich erstrahlt: Sein Hauptmaterial Holz verbleibt trotz seiner tragenden Rolle verblüffend unaufdringlich bis unerkennbar.
Die Rede ist von einem fotorealistischen Rendering, dass die Architekten für den Wettbewerb einreichten. Skellefteå ist geprägt von fast durchgehend dunklen Wintertagen, und in diesem Bild umschmeicheln diese halbdunklen Lichtverhältnisse das Projekt: eine geschickte Rechtfertigung, um die mehr oder weniger aufragenden Kuben zum Leuchten zu bringen (gleich einer Riesenlampe in der Landschaft von Stadt und Wald). Die Komposition erinnert an scharfgeschnittene Eiswürfel oder an ein Modell aus Acryl mit milchig schimmernden Oberflächen. Die Präsentation lässt den Verdacht aufkommen: Man wollte auf keinen Fall den Eindruck von Bauklötzen erwecken. Der Zaubertrick lautet: Glas!

Glace – das bedeutet im Französischen (unter anderem) Eis, Glasur und natürlich auch Glas. Diese Bedeutungen kann man (unter bestimmten Lichtbedingungen) am Hotelturm ablesen: ein Holzklotz, „glasiert“ von einer gläsernen Hülle. Das Rohe wird abgemildert durch etwas Fragiles davor (gleich einem Echo von Gropius‘ Curtain Wall). Dafür, dass das Material Holz im Mittelpunkt stehen soll, ist der Einsatz von Glas bei Sara Kulturhus frappant. Die Visualisierung streicht diese ausgeklügelte Ästhetik des Projekts hervor. Inmitten einer dämmerigen, schneebedeckten Stadtlandschaft posiert der Gebäudekomplex wie eine moderne Eis-Skulptur, die von innen sanft erstrahlt. Wie hinter einer riesigen vereisten Fensterscheibe lässt sich der hölzerne Kern fast nur erahnen. (Dass es an vielen Stellen der Fassade mehr Holz als Glas gibt, geht in der bewussten Unschärfe der Darstellung unter.) Es ist als wollten die Architekten nicht überall „dick auftragen“ mit dem Thema Holz, zumindest nicht von außen. Stattdessen legen Sie eine feine gläserne Schicht auf, gleich einer Lasur, was (um den etymologischen Bogen zu schließen) im Englischen mit ‚glaze‘ übersetzt werden kann.
Holz ist „cool“ oder hat das Potenzial dazu. Ein solches fast widersprüchliches Credo strahlt das Projekt von White Arkitekter per Visualisierung aus. Aber in Realität – und insbesondere drinnen – wird das Holz, mit all seiner Haptik und Behaglichkeit, allgegenwärtig bis ins Detail. Von Tragkonstruktion bis Treppe durchzieht es den gesamten Organismus. Selbst die Garderobenhaken der Hotelzimmer sind nicht aus ordinärem Holz, sondern gleichen in ihrer Form kleinen Ästen. Ohne Zweifel: Im Innern lässt sich die Wärme des Materials nicht mehr hinter einem Schleier von Glas verhüllen. Hier werden die Sinne überwältigt. Sogar der Duft kommt hinzu, ein Faktor, den die Moderne oftmals wegabstrahiert.
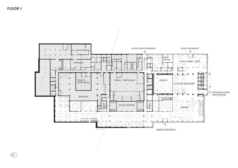
Wie erleben die Besucher aber das Gebäude, noch bevor sie in den Genuss seines Innenlebens kommen? Sara Kulturhus ist zuallererst geprägt von Zugänglichkeit. Das ist bei einem Komplex von zehn Baukörpern nicht selbstverständlich. Um das menschliche Maß zu achten, versuchten die Architekten die niedrigeren Bauvolumen zu den Straßen hin anzuordnen, womit sie die anderen in ihrer Höhe abpuffern. Die Architekten achteten außerdem auf Barrierefreiheit und darauf, dass es Eingänge an allen Seiten gibt. Das Signal lautet: Hier sind alle willkommen. Die Organisation der Räume unterstreichen das: Die großen Bühnen, die völlige Dunkelheit erfordern, liegen in der Mitte des Geländes, wobei die restlichen Räume des Theaterbetriebs sie umlagern. Diese Nebenräume sind, sofern auf Straßenebene, für Passanten einsehbar. (Hier kommt auch die praktische Bedeutung von Glas ins Spiel: Es signalisiert Transparenz und Offenheit.) Im Effekt kommt das Gebäude wie eine lebendige Kulturwerkstatt daher, die aus sich kein Geheimnis macht.


Das Einladende setzt sich beim Betreten fort. Kommt man aus Richtung Hauptplatz, erwartet die Besucherschaft eine einfache Wegführung. Die Zentrale ist eine Art öffentliches Wohnzimmer. Dieser flexible Bereich lockt durch eine breite Treppenanlage, genannt Culture Staircase. Neben seiner Aufforderung zum Platznehmen, Verschnaufen und Überblickgewinnen dient sie als Kontakt- und Grenzposten zwischen Hotel-Lobby und Bücherei. Hinter ihr gibt es insgesamt fünf Bühnen. Zu ihren Foyers gelangt man erst in der zweiten Ebene, auf die man von der Straße am Nordende des Gebäudes gelangen kann. Aufführungsräume bilden einen wichtigen Schwerpunkt des Raumprogramms. Klar zugewiesene Ausstellungsflächen jedoch zeigen die Pläne (abgesehen von der zweiten Ebene) kaum. Konferenzräume, Büros und Restaurants konzentrieren sich im vierten Stock.
Einen besonderen Auftritt gewähren die Architekten aber vor allem der Konstruktion von Sara Kulturhus. Beispielhaft erwähnt seien nur einige Punkte. Die Hotelzimmer, die sich über der Zone mit dem Culture Staircase auftürmen, bestehen aus vorgefertigten 3D-Modulen in Brettsperrholz (BSP). Eine weitere Spezialität von Sara Kulturhus: Die stabilisierenden Schächte bestehen ausschließlich aus Holz, genauer gesagt aus BSP und Brettschichtholz, und sind durch Stahlstangen mit dem Fundament verbunden. Markantes Kennzeichen des Innenraums sind die Holz-Stahl-Hybridbinder mit naturfarbenem Holz für Druckteile und schwarz gefärbtem Stahl für Zugteile. Sie überbrücken große Spannweiten und machen damit die freien Räume z. B. für Kunstausstellungen flexibel nutzbar. Teil der Statik ist auch die Glasfassade. Das Gebäude beinhaltet insgesamt 800 m2 Glasscheiben, darunter eine Dreifachverglasung aus Sonnenschutzglas und – auf der Innenseite – Verbundsicherheitsglas mit einer emissionsarmen Beschichtung.




Sara Kulturhus stellt – mit all ihren komplexen Ansprüchen – auch für die Arbeit von White Arkitekter einen wichtigen Meilenstein dar. Ihr Ziel ist es, ihre gesamte Architektur kohlenstoffneutral zu gestalten, und zwar bis zum Jahr 2030. Das ist auch die magische Zahl des Pariser Klimaabkommens, wonach bis dahin die Emissionen zeitnah auf Netto-Null (engl. = Net Zero) gesenkt werden müssen. Das Bauen mit Holz ist – wegen seiner Eigenschaft, Kohlenstoff zu speichern – für den Übergang zu Net Zero ein idealer Beitrag. Zudem stammt das nachwachsende Baumaterial von Sara Kulturhus aus den Wäldern rund um Skellefteå (im Umkreis von 60 km) und für jeden gefällten Baum wurde mindestens ein neuer nachgepflanzt. Andere Stichpunkte zur Nachhaltigkeit sind: Die Architekten bevorzugten die Zusammenarbeit mit lokalen Zulieferern und Subunternehmern. Die Zahl der für den Transport benötigten Lastwagen konnte um rund 90 Prozent reduziert werden. Dank Fertigbauteilen konnte man alle zwei Tage eine Hotel-Etage fertigstellen. Last but not least: Die Verwendung von Holz anstelle von Stahl und Beton sparte ein ganzes Jahr Arbeit.
Die leitenden Architekten Robert Schmitz und Oskar Norelius wissen aus Erfahrung, nachhaltiges Bauen braucht Willen und Ehrgeiz; sie betonen, dass die größte Herausforderung dieses Projekts darin lag, die Menschen davon zu überzeugen, etwas zu bauen, was noch nie zuvor gebaut wurde. Ihr Erfolg mit Sara Kulturhus macht daher Mut. Jedoch nicht alle Orte sind umringt von nachwachsenden Wäldern, nicht alle Gemeinden haben das nötige Geld. Andere Probleme kommen dazu. So gilt in vielen Ländern der Holzbau weiterhin als Exot in der Stadtlandschaft.
Beispiel Deutschland: Hier soll das höchste deutsche Holzhaus vorerst in der Hafencity von Hamburg stehen. (Seine Grundsteinlegung war im September.) Das Wohn- und Bürogebäude Roots ist aber kein reiner Holzbau (sein zentrales Treppenhaus ist aus Beton), sein Holz stammt aus Österreich und die kritischen deutschen Medien zögern nicht hervorzuheben, Bauen mit Holz ist teurer als mit Beton3. Die Ernüchterung mag Enthusiasten verärgern. Fest steht: Solange Holzbau sich auf Elite-Projekte beschränkt (der Preis für eine Zwei-Zimmer-Eigentumswohnung von Roots beträgt 530.000 €4), solange wird er in der breiten Gesellschaft und somit beim Klima kaum Einfluss zeigen.
Ist die Holzarchitektur schon für wohlhabende Industrienationen mit hohen Investitionen verbunden, wie sollen erst andere, nicht so wirtschaftsstarke Länder in den Modus des nachhaltigen Bauens gelangen? Nachhaltigkeit, CO2-negative oder CO2-neutrale Bauweisen, wie der Holzmassivbau von Sara Kulturhus, haben erst dann einen Effekt auf das Klima, wenn es nicht bei spannenden, aufsehenerregenden Pin-ups der Architekturpublikationen, Pilgerstätten für Fortschrittsanbeter oder reizende Namen wie HoHo in Wien oder WoHo in Berlin bleibt: So hervorragend Projekte wie Sara Kulturhus auch sind (und das im wahrsten Sinne des Wortes). Sara Kulturhus & Co sind meist – bei allem gesellschaftlichen Nutzen – gebaute Missionen, touristische Attraktionen, vorbildhafte Studienobjekte für Fachleute. Aber die Idee der Nachhaltigkeit lebt nicht nur von Qualität, sondern auch von Quantität, von mehr Anwendung in der Welt und im Alltag. Nicht die Verzauberung von Spezialisten, sondern das Ankommen in breiten Bevölkerungsschichten ist gefragt und auch hier nicht in Form von vielen luxuriösen Residenzen und vereinzelten Bauten der Öffentlichkeit für Arbeit, Konsum und Kultur, sondern durch erschwingliche Mietwohnungen für alle.
Doch nicht nur für die durchschnittliche Bevölkerung erweist sich Holzarchitektur als fast unerreichbar. Selbst unter den Profis im Lauf der Architekturgeschichte konnten nur Wenige das Holz in ihrem Werk etablieren. Das warme Material ging in der Moderne fast unter. Zu allmächtig waren Namen wie Le Corbusier oder Walter Gropius, die für International Style und Bauhaus stehen.
Die Giganten der modernen Architektur hatten durchaus Berührungspunkte mit Holz, wurden aber kaum gefeiert dafür. Die Epoche erforderte Errungenschaften mit Baumaterial, das für Fortschritt stand, wie Stahlbeton, Stahl und Glas. Le Cabanon von Le Corbusier, eine vorgefertigte kleine Holzhütte als sein privates Feriendomizil, ist ein rührender Einzelfall im Werk einer Jahrhundertfigur, dem Meister des Beton Brut. Und auch Gropius ist nicht bekannt für Holzarchitektur, trotz Haus Sommerfeld, dem ersten Gemeinschaftsprojekt der Bauhaus-Schule mit bemerkenswert nachhaltigen Zügen – genutzt wurde Holz von einem abgewrackten Kriegsschiff. Bekannt für sein Salk Institute for Biological Studies, mit seiner klassisch-edlen Kombination von Beton und Holz, war der ansonsten sehr monumental entwerfende Louis Kahn ursprünglich aktiv im öffentlichen Wohnungsbau: In den 40-iger Jahren baute er in einem Waldgebiet ein gewerkschaftliches Projekt für afroamerikanische Stahlarbeiter. Kahns Carver Court in Coatesville hat viel Holzanteil und gehört zu den vergessenen Werken eines Architekten, dem soziales Verantwortungsgefühl nicht fremd war. Eine intensive Auseinandersetzung mit Holz hatte vor allem Konrad Wachsmann, der spätere Pionier des Modulbaus und industriellen Bauens. Er war 1926 Angestellter bei einer großen Holzbau- und Maschinenfabrik und veröffentlichte 1930 sein Buch Holzhausbau. Technik und Gestaltung. Schon damals gab es Holzbauten, die komplett maschinell vorfabriziert wurden und Wachsmann beschäftigte sich schon früh mit modulartigen Konzepten. Er hatte die Vision, die Holzbauweise bis zur industriellen Serienproduktion weiter zu entwickeln. Jedoch: Der Erbauer des hölzernen Einsteinhauses in Caputh wurde später insbesondere berühmt für seine mächtigen Raumfachwerke aus Stahl. Weitere weltbekannte Namen sind Alvar Aalto und Frank Lloyd Wright. Beide waren naturbezogen und zeigten, wie förderlich Holz für das wohnliche Befinden ist. Doch ihre Holzarchitektur, die relativ viel Platz einnahm in ihrer Arbeit, entwickelte sich in einer Zeit, als das Klimaproblem noch nicht akut war. (Eines von Wrights Werken ist aber mittlerweile zum gebauten Klima-Aktivisten aufgestiegen: Der Stadtflüchter und Schriftsteller T. C. Boyle – bekannt u. a. für seine Öko-Romane Ein Freund der Erde und Die Terranauten – lebt seit den 90-iger Jahren in einem aus Rotholz bestehenden Prärie-Haus, das der amerikanische Architekt 1909 gebaut hatte.)
Aktuell führt Holzarchitektur aber nicht mehr ein ästhetisches Randdasein. Anbieter von Holzmaterial proklamieren ihren Vormarsch in der Bauwelt. Der Fokus ist da: In der heutigen Zeit verschärft sich der Blick auf biologische Baustoffe notgedrungen. Durchsetzungskraft und Förderung ist aber immer noch gefragt. Gleichzeitig will jeder beim Trend ganz vorne sein, was sogar per Vorankündigung praktiziert wird: So möchte der japanische Holzverarbeitungskonzern Sumitomo Forestry mit dem Projekt W350 einen 350 m hohen Turm mit 70 Stockwerken errichten, um sein 350-jähriges Jubiläum im Jahr 2041 zu feiern. Der große Wolkenkratzer-Wettstreit des Beton-Stahl-Glas-Sektors hat mit Holztürmen eine kleine Schwester erhalten, die da (metaphorisch) jubelt: Auch ich kann hoch hinaus! Woodscraper kommen in Mode und das sinnliche Holz droht zur bloßen Sensation zu verkümmern.
Sara Kulturhus und Mitstreiter lassen fragen „Quo Vadis Holzbau?“ Was White Arkitekter betrifft: Sie gehen ihren Weg immer weiter – nach London und Oslo folgt nun Stuttgart, wo es seit diesem Jahr eine Dependance gibt. Viel herumgekommen war auch Sara Lidman, denn Sara wollte viel.
Die 2004 verstorbene Schriftstellerin hatte in den 1960er Jahren in Südafrika, Tansania und Kenia gelebt. Mitten im Krieg reiste sie sogar nach Nordvietnam. Die Erfahrungen flossen in ihre Afrika-und Vietnam-Romane ein. Die weltweit ausbeuterischen, korrumpierenden Kräfte des Kapitalismus beschäftigte sie zeitlebens. Sie schrieb aber auch kritische Heimatromane über Waldarbeiter und Kleinbauern. Schon seit ihrem Debüt Tjärdalen (Das Teertal) kreist ihr Werk um die harten Daseinsbedingungen und um die Verantwortung für die Mitmenschen. Und dazu gehört auch die Fürsorge um die Natur. Die Schweden haben eine sehr körperliche Beziehung zu ihren Bäumen, den viele offen ausleben (man denke nur an Lidmans Kollegin und Landsfrau Astrid Lingren und ihren Ausspruch: Es steht ja wohl nicht in den zehn Geboten, dass alte Weiber nicht in Bäume klettern dürfen?) Sara Lidman war in ihrer typisch schwedischen Naturverbundenheit keine Ausnahme. Sie war sich dessen bewusst, wie abhängig wir sind von einer empfindlichen und von einer zunehmend bedrohten Umwelt.


Verteidigung von Menschen und Wäldern – davon war Sara Lidmans Schreiben geprägt5. Sie hätte sich über die hehren Absichten der Architekten, über all die umgesetzten Ideen rund um offene Gesellschaft und geschonte Natur, gefreut. Was hätte sie jedoch dazu gesagt, dass die Gemeinde Skellefteå Sara für eine Milliarde Schwedische Kronen an eine private Immobiliengesellschaft verkaufte und dazu, dass der Inhaber dieser Gesellschaft verhaftet wurde, weil er gegen das Marktmissbrauchsgesetz verstieß?6 Solche Fragen lässt man gerne im Dunkeln. Es bleibt der strahlende Lichtblick Sara Kulturhus.
White Arkitekter versteht es, ihr Gebäude zum würdigen Ausdruck der Namensgeberin zu machen und gleichzeitig das Image der Holzarchitektur – nicht zuletzt per Glas – zu polieren und zu verfeinern. Sara Kulturhus verteidigt nicht nur Menschen und Wälder. Es erweitert den Begriff der Moderne. Es ist ein zeitgemäßes Statement für öffentliche Großprojekte, die das Material Holz mit den herkömmlich-fortschrittlichen verbinden. Sara Kulturhus hat Bedeutung und Gewicht und sie tut das mit einem Schuss von Leichtigkeit. ♦
¹ https://www.baunetz.de/meldungen/Meldungen-Gespraech_mit_Buergermeister_Lorents_Burman_zur_Ausstellung_in_Berlin_7726100.html; letzter Zugriff 8.12.2021
² http://whitearkitekter.com/white2016/about/; letzter Zugriff 8.12.2021
³ https://www.ndr.de/nachrichten/hamburg/Hamburger-Hafencity-Grundsteinlegung-fuer-hoechstes-Holzhaus-Deutschlands,roots114.html; letzter Zugriff 8.12.2021
⁴ https://www.neubaukompass.de/neubau/roots-hamburg/?gclid=Cj0KCQiA-qGNBhD3ARIsAO_o7ym0hd6Ntkf_pt9HSc0Yw9hq-XRc775bbGfWWktxRwHZaYYjF9UYjREaAvhWEALw_wcB; letzter Zugriff 8.12.2021
⁵ Forsås-Scott, H. (1984). In Defense of People and Forests: Sara Lidman’s Recent Novels. World Literature Today, 58(1), 5–9. https://doi.org/10.2307/40139633; letzter Zugriff 8. 12. 2021
⁶ https://www.svt.se/nyheter/lokalt/vasterbotten/vd-n-for-fastighetsbolaget-som-koper-kulturhuset-sara-anhallen; letzter Zugriff 8.12.2021
Sara Kulturhus by White Arkitekter: With Weight and Lightness
The new cultural centre in Skellefteå, Sweden, unites tourists and locals under its roofs. From hotel tower to Culture Staircase and theater stages to library, Sara Kulturhus uses wood and glass to set an example for climate awareness and openness to all people – fully following the spirit of Sara Lidman.
Sara Kulturhus – with its art gallery, museum, regional theatre, restaurant, city library, hotel and conference centre – has only been open for a few months in Skellefteå, Sweden, and already one could fill entire books with the publications that accompany this built plea for modern wooden architecture. Let’s start with the ambitions and visions because: Sara wants a lot.
Sara stands for Sara Lidman, a Swedish writer born in a small village in the Skellefteå region. Her simple background has shaped her work. In it, the struggle for survival of the lower classes plays a central role. In keeping with the social criticism of its namesake, Sara Kulturhus combines regional and global influences. Built by local workers – with local construction techniques and local materials – the result is a cultural meeting place where users and visitors are not limited to the locality; in addition to natives and tourists, refugees are also welcome. Sara Kulturhus is a travel centre for the soul and a place of democracy.
The holistic claims are impressive and almost too grand for a place that could pass for a small town: Skellefteå is considered the southern gateway to Swedish Lapland. Founded in 1845 (it is said by a vicar named Nils Nordlander), it is one of the youngest towns on the coast of northern Sweden. Outstanding features are – eclectically summarised: the Skellefteå Museum, Bonnstan (an open-air museum with old wooden houses), the Lejonströmsbron Bridge from 1737 (for a long time the longest wooden bridge in the country), a large mining and timber industry, a battery industry (currently the largest battery factory in Europe is being built here) and of course the forest.
However, there is a danger hanging over all these advantages and resources: Skellefteå has to deal with outflow of people. The goal is to reach a population figure of 80,000 for the region by 2030. The idea of a cultural centre was just another move in the game of attractions. At the end of 2015, a public architectural competition was held, resulting in 55 entries from 11 countries. White Arkitekter won with the design Side by Side. The catchy title is a simple expression of what the building volumes do. Being different in height, they stand close together in various projections or recesses to the streets. At the same time, the title formulates what happens inside, how the spatial functions become compatible and groups of people mix – tourists, theatre fans, gourmets and bookworms from near and far. All of this represents the bringing together of diverse social classes, very much in the spirit of Sara Lidman.
The new centre for culture and events includes four existing cultural programmes: the Västerbotten Regional Theatre, the Skellefteå City Library, the Museum Anna Nordlander and the Skellefteå Art Gallery theatre stages for a total of 1200 people and a hotel with 150 rooms and a conference centre. Functions of this kind are undoubtedly also economically efficacious; they ensure increasing revenues, another target. The reason why the city sold the building to a real estate company (SBB) is another matter. What is certain: Volkswagen’s partner Northvolt established its battery factory in Skellefteå after this sale. The mayor explains: „We would never have got Northvolt, with their claim to build Europe’s largest battery factory, if we had not directly shown a picture of White Arkitekter’s wooden tower at an initial meeting with the investors in 2017. „1 (In the original, the quote is in German.)
The wooden tower is a 20-storey hotel with a kilometre-long view over the city. It rises out of the cubic ensemble of the cultural centre and the surrounding area. Yet, the idea itself is less outstanding. For, referring to the timber industry and the fact that Skellefteå’s wooden buildings had to give way to increasing modernisation, many other competition participants have focused on wood and towers. The cultural centre as a sign of the revival of a building tradition was not far to seek. So why did they choose this office? Apart from the persuasiveness of the design, the most important reason could be: With its more than 700 employees, White Arkitekter is one of the most long-established firms in the country (Sidney White and P. A. Ekholm founded it in 1951). In addition to the ten offices in Sweden, it also has a number of branches abroad and is increasingly focusing on the renewable raw material wood. Besides its practical expertise, the office also shines ideologically. Democratising Architecture is the headline with which they introduce themselves on the homepage2, and they start with themselves: 600 of the employees are company shareholders. Their buildings represent sustainability in practice, and for this, they even rely on their own research department.
But what tipped the scales in favour of the concept Side by Side? Despite all the technical expertise and the promise to deliver a sustainable building (which will be discussed later), White Arkitekter tried to give their house of culture one thing above all else: atmosphere. When the mayor showed a picture of the wooden tower to the investor Northvolt, he did so not only to impress them with a 20-storey hotel 75 metres high. He also wanted to seduce this Swedish manufacturer of lithium-ion batteries with an enchanting, warm ambience. (Warmth is crucial to the Swedes; their sense of light and their preference for lamps that they place in their windows is famous.) And the said ambience is particularly striking in a visualisation wherein the tower literally shines: Its primary material, wood, remains perplexingly unobtrusive or even unrecognisable despite its leading role.
We are talking about a photorealistic rendering the architects submitted for the competition. Typical for Skellefteå are its almost continuously dark winter days. Accordingly, these semi-dark lighting conditions flatter the project: a clever justification to make the more or less rearing up cubes glow (like a giant lamp in the landscape of city and forest). The composition is reminiscent of sharply cut ice cubes or a model made of acrylic with milky shimmering surfaces. This presentation gives rise to suspicion: Definitely, one did not want to create the impression of toy building blocks. The magic trick reads glass!
Glace – in French, this means (among other things) ice, varnish and of course, glass. These meanings can be seen (under certain lighting conditions) in the hotel tower: a wooden block „glazed“ by a glass shell. The rawness softens due to something fragile in front of it (like an echo of Gropius‘ Curtain Wall). Given that the focus is on wood as a material, the use of glass at Sara Kulturhus is striking. The visualisation emphasises this sophisticated aesthetic of the project. Amidst a dim, snow-covered cityscape, the building complex poses like a modern ice sculpture, glowing softly from the inside. As if behind a huge frozen window pane, the wooden core becomes almost barely discernible. (The fact that there is more wood than glass in many parts of the façade practically goes unnoticed in the deliberate blurriness of the depictions.) It is as if the architects did not want to lay it on thick with the wood theme, at least not from the outside. Instead, they put on a fine layer of glass, like a varnish, which (to close the etymological bow) can be translated in English as ‚glaze‘.
Wood is „cool“ or has the potential to be. This almost contradictory credo exudes from the project by White Arkitekter via visualisation. But in reality – and especially inside – wood, with all its haptics and comfort, becomes omnipresent in every detail. From the supporting structure to the stairs, it permeates the entire organism. Even the coat hooks in the hotel rooms are not made of ordinary wood but resemble small branches. There is no doubt about it: inside, the warmth of the material can no longer be concealed behind a veil of glass. Here, the senses are overwhelmed. Even the scent gets involved, a factor that modernity often abstracts away.
But how do visitors experience the building even before they get to enjoy its interior? Sara Kulturhus is first and foremost characterised by accessibility. That is not a matter of course in a complex of ten volumes. Keeping the human scale in mind, the architects tried to arrange the lower building volumes towards the streets. Thereby they buffered the others in height. The architects also paid attention to freedom from barriers and the fact that there are entrances on all sides. The signal is: everyone is welcome here. The organisation of the rooms underline this: The big stages, which require complete darkness, are located in the centre of the site, with the rest of the theatrical spaces surrounding them. These ancillary areas, if at street level, are viewable by pedestrians. (This is also where the practical significance of glass comes into play: it signals transparency and openness). The effect is that the building looks like a lively cultural workshop that makes no secret of itself.
Once you enter the building, the inviting atmosphere continues. Coming from the direction of the main square, visitors can expect simple route guidance. The centre is a kind of public living room. This flexible area lures visitors with a wide staircase called Culture Staircase. In addition to offering an opportunity to take a seat, catch one’s breath and gain an overview, it serves as a point of contact and a border between the hotel lobby and the library. Behind it, there are a total of five stages. Their foyers are only accessible on the second level, which people can reach from the street at the north end of the building. The performance spaces are a focal point of the spatial programme. Distinct exhibition spaces, however, are hardly shown in the plans (apart from the second level). Conference rooms, offices and restaurants all cluster on the fourth floor.
Yet, what the architects give an exceptional appearance is, above all, the construction of Sara Kulturhus. Here are just a few illustrative points. The hotel rooms, which tower above the Culture Staircase zone, consist of prefabricated 3D modules in cross-laminated timber (CLT). Another speciality of Sara Kulturhus: these shafts are made exclusively of wood, more precisely CLT and glulam, and connect to the foundation by steel rods. A striking feature of the interior: the wood-steel hybrid trusses with natural-coloured wood for pressure parts and black-coloured steel for tension parts. Their large span allows for flexible use of the free spaces, e.g. for art exhibitions. The glass façade is also part of the statics. The building contains a total of 800 m2 of glass panes, including triple glazing made of solar control glass and – on the inside – laminated safety glass with a low-emission coating.
Sara Kulturhus – with all its complex demands – also represents a significant milestone for White Arkitekter’s work. Their goal is to make all of their architecture carbon neutral by 2030 – precisely the magic number of the Paris Climate Agreement that requires emissions to be reduced to Net Zero in a timely manner. Due to its ability to store carbon, building with wood is an excellent contribution to the transition to Net-Zero. Moreover, Sara Kulturhus‘ renewable building material comes from the forests around Skellefteå (within a radius of 60 km) and for every tree felled, at least one new one was replanted. And there are still more keywords about sustainability. The architects favoured working with local suppliers and subcontractors. The number of trucks for transport was reduced by around 90 percent. Thanks to prefabricated components, it was possible to complete one hotel floor every two days. Last but not least: the use of wood instead of steel and concrete saved a whole year’s work.
The leading architects Robert Schmitz and Oskar Norelius, know from experience that sustainable construction requires will and ambition; they emphasise that the biggest challenge of this project was to convince people to build something no one had ever built before. Their success with Sara Kulturhus is therefore encouraging. However, not all places have renewable forests in their surroundings, and not all communities have the money. Other problems come into play. In many countries, timber construction is still considered an exotic feature within the urban landscape.
Take Germany, for example: for the time being, Germany’s tallest wooden house will stand in Hamburg’s Hafencity. (Its groundbreaking ceremony was in September.) But the residential and office building Roots is not a pure timber construction (its central staircase is concrete). Furthermore, its timber comes from Austria, and the critical German media do not hesitate to point out that building with wood is more expensive than concrete3. The disillusionment may anger enthusiasts. One thing is for sure: as long as timber construction is limited to elite projects (the price of a two-bedroom condominium by Roots costs €530,0004), it will have little impact on society at large and thus on the climate.
If timber architecture is already associated with high investments for wealthy industrial nations, how are other, not so economically strong countries supposed to get into the mode of building sustainably? Sustainability, carbon-negative or carbon-neutral building methods, such as the solid wood construction of Sara Kulturhus, will only have an effect on the climate if it does not remain with exciting, sensational pin-ups of architectural publications, pilgrimage sites for progress worshippers or with charming names like HoHo in Vienna or WoHo in Berlin: as outstanding as projects like Sara Kulturhus are (and in the truest sense of the word). For all their social benefits, Sara Kulturhus & Co mostly are built missions, tourist attractions, exemplary objects of study for experts. But the idea of sustainability lives not only from quality but also from quantity, from more application in the world and everyday life. What is needed is not the enchantment of specialists but reaching broad sections of the population, and here too not in the shape of many luxurious residences and a few public buildings for work, consumption and culture, but by providing affordable rental housing for all.
But it is not only for the average population that wooden architecture proves to be almost unattainable. Even among professionals throughout the history of architecture, only a few managed to establish wood in their work. The warm material nearly went under in the modern era. Names like Le Corbusier or Walter Gropius, who stand for International Style and Bauhaus, were too omnipotent.
The giants of modern architecture certainly had contact points with wood but were hardly celebrated for it. The era demanded achievements with building materials that stood for progress, such as reinforced concrete, steel and glass. Le Cabanon by Le Corbusier, a prefabricated little wooden hut as his private holiday home, is a touching isolated case in the work of a figure of the century, the master of Beton Brut. And Gropius is not known for wooden architecture either, despite Haus Sommerfeld, the first joint project of the Bauhaus school with remarkably sustainable features – using some wood from a scrapped warship. Known for his Salk Institute for Biological Studies, with its classical-noble combination of concrete and timber, the otherwise very monumental designer Louis Kahn was formerly active in public housing. In the 1940s, he built a labour union project for African-American steelworkers in a wooded area. Kahn’s Carver Court in Coatesville has a lot of wood and is one of the forgotten works of an architect who was no stranger to a sense of social responsibility. The most intense involvement with wood had Konrad Wachsmann – the later pioneer of modular construction and industrial building. In 1926 he was employed by a large timber construction and machine factory, and in 1930 he published his book Building the Wooden House. Technique and Design. Even then, there were wooden buildings completely prefabricated by machine, and Wachsmann became interested in modular concepts early on. He had the vision of further developing the timber construction method up to industrial series production. Yet, later on, the builder of the wooden Einstein House in Caputh became particularly famous for his mighty space frames made of steel. Other world-famous names are Alvar Aalto and Frank Lloyd Wright. Both were nature-oriented and showed how beneficial wood is for the homely feeling. But their wooden architecture, which took up a relatively large amount of space in their work, developed in a time when the climate problem was not yet acute. (One of Wright’s works, however, has since risen to become a built climate activist: The city fugitive and writer T. C. Boyle – known for his eco-novels A Friend of the Earth and The Terranauts, among others – has been living in a redwood prairie house, built by the American architect in 1909, since the 1990s.)
Today, however, wooden architecture no longer plays a marginal aesthetic role. Suppliers of wood materials are proclaiming their advance in the building world. The focus is there: In today’s world, interest in biological building materials is, of necessity, intensifying. But assertiveness and promotion are still in demand. At the same time, everyone wants to be at the forefront of the trend, even by practising preannouncement: The Japanese wood processing company Sumitomo Forestry, for example, wants to build a 350 m high tower with 70 floors with the W350 project to celebrate its 350th anniversary in 2041. The big skyscraper competition of the concrete-steel-glass sector has got a little sister in the form of wooden towers, which (metaphorically) exult: I too can reach high! Woodscrapers are coming into fashion, and the sensual wood threatens to wither into a mere sensation.
Sara Kulturhus and fellow campaigners make you wonder: „Quo Vadis Timber Construction?“ As far as White Arkitekter is concerned, they continue on their path. After London and Oslo, they are now in Stuttgart, with another branch since this year. Sara Lidman also had been around a lot because Sara wanted a lot.
The writer, who died in 2004, had lived in South Africa, Tanzania and Kenya in the 1960s. She even travelled to North Vietnam in the middle of the war. The experiences flowed into her Africa and Vietnam novels. The globally exploitative, corrupting forces of capitalism preoccupied her throughout her life. But she also wrote critical novels about forest workers and small farmers. Ever since her debut Tjärdalen (The Tar Valley), her work has revolved around the harsh conditions of existence and responsibility for fellow human beings. And that includes caring for nature. The Swedes have a very physical relationship with their trees, which many openly live out. (One only has to think of Lidman’s colleague and compatriot Astrid Lingren remarking: There’s nothing in the Ten Commandments forbidding old ladies to climb trees, is there?) Sara Lidman was no exception in her typically Swedish love of nature. She was aware of how dependent we are on a fragile and increasingly threatened environment.
Defence of people and forests – this was what Sara Lidman’s writing was about5. She would have been happy about the noble intentions of the architects, about all the implemented ideas around open society and preserved nature. But what would she have said about the fact that the municipality of Skellefteå sold Sara to a private real estate company for a billion Swedish kronor and about the fact that the owner of this company was arrested for violating the Market Abuse Act?6 These are the kinds of questions one likes to leave in the dark. There remains the shining ray of hope Sara Kulturhus.
White Arkitekter knows how to make their building a worthy expression of its namesake and at the same time how to polish and refine the image of wooden architecture – not least by employing glass. Sara Kulturhus not only defends people and forests. It extends the notion of the modern. It is a timely statement for large-scale public projects that combine wood with conventionally-progressive materials. Sara Kulturhus has meaning and weight, and it does so with a dash of lightness.
TRANSLATION BY ÖZLEM ÖZDEMIR
1 In the original, the quote is in German: https://www.baunetz.de/meldungen/Meldungen-Gespraech_mit_Buergermeister_Lorents_Burman_zur_Ausstellung_in_Berlin_7726100.html; last access date 8.12.2021
2 http://whitearkitekter.com/white2016/about/; last access date 8.12.2021
3 https://www.ndr.de/nachrichten/hamburg/Hamburger-Hafencity-Grundsteinlegung-fuer-hoechstes-Holzhaus-Deutschlands,roots114.html; last access date 8.12.2021
4 https://www.neubaukompass.de/neubau/roots-hamburg/?gclid=Cj0KCQiA-qGNBhD3ARIsAO_o7ym0hd6Ntkf_pt9HSc0Yw9hq-XRc775bbGfWWktxRwHZaYYjF9UYjREaAvhWEALw_wcB; last access date 8.12.2021
5 Forsås-Scott, H. (1984). In Defense of People and Forests: Sara Lidman’s Recent Novels. World Literature Today, 58(1), 5–9. https://doi.org/10.2307/40139633; last access date 8.12.2021
6 https://www.svt.se/nyheter/lokalt/vasterbotten/vd-n-for-fastighetsbolaget-som-koper-kulturhuset-sara-anhallen; last access date 8.12.2021


